Apartment 74, Starling House

Jump to:

Development Jump Navigation

Development Jump Navigation

Image
Kew Bridge Rise - podium gardens

This 544sqft 11th floor home, newly released, just a 2-minute walk to Kew Bridge Station with a host of resident amenities to enjoy. Want a closer look? Join us Sat 29 Nov for our new show apartment launch. 

Sales Suite Address: Capital Interchange way, Brentford, TW8 0EX. Opening Times: Monday, Tuesday, Thursday, Friday, Saturday, 10:00am - 17:30pm. Wednesday 10:00-19:00. Sunday 10:00 - 16:00.

Apartment 74 is a spacious 544sqft 1 bedroom, 1 bathroom apartment on the 11th floor of Starling House. 

Be the first to experience our brand-new show apartment at Kew Bridge Rise, on Saturday 29th of November we are launching our latest edition. Get in touch today to RSVP or visit our website to find out more. 

Property Highlights

  • Spacious open-plan kitchen / dining / living room with access to private balcony
  • Latest and final phase of Kew Bridge Rise
  • Bedroom with fitted wardrobes
  • Ample storage – including a utility cupboard home to a washer dryer
  • Underfloor heating
  • Enterprise car club available
  • 10-minute walk to Gunnersbury Station with excellent connections to central London
  • Never miss a parcel with our on-site concierge
  • Resident’s coworking space, gym and an on-site nursery 

Out and about

Kew Bridge Rise offers everything you need with our exclusive facilities, however within reach of the development itself, the local area boasts excellent amenities, including:

  • Kew Gardens
  • Chiswick High Road
  • Kew Bridge, leading to Kew Green
  • The River Thames
  • The King’s C of E Primary School
  • The Glasshouse
  • F45 Chiswick Park
  • Syon House
  • Kew Retail Park

Cross Kew Bridge and take a stroll down the Thames Path: the perfect vantage point for watching the boats go by. With flower shops, independent bookshops, and cosy restaurants. 

Transportation

  • Both Kew Bridge Station (2-minute walk) and Gunnersbury Station (10-minute walk) are within walking distance and will get you into London, Chiswick, or Vauxhall easily.
  • The M4 is within easy access taking into both Central London and the Middlesex and Surrey countryside easily.
  • This development is also a 12-minute drive to Heathrow Airport, making traveling abroad easy and accessible. 

Next Steps

Contact our sales team to find out what your life could look like at the award-winning Kew Bridge Rise development.

Tenure:
Leasehold
Service charge:
£2617.00
Ground rent:
£0.00 per year
Council tax band:
TBC
Time remaining on lease:
999 years

Features

  • Our final phase at Kew Bridge Rise

  • Approx. 544sqft

  • Private balcony

  • Bedroom with fitted wardrobes

  • Underfloor heating throughout

  • Walking distance to riverside shops and cafes

  • Never miss a parcel with our on-site concierge

  • Resident's podium gardens & gym

  • 2-minutes to Kew Bridge Station

Tenure:
Leasehold
Service charge:
£2617.00
Ground rent:
£0.00 per year
Council tax band:
TBC
Time remaining on lease:
999 years
Floor Plans
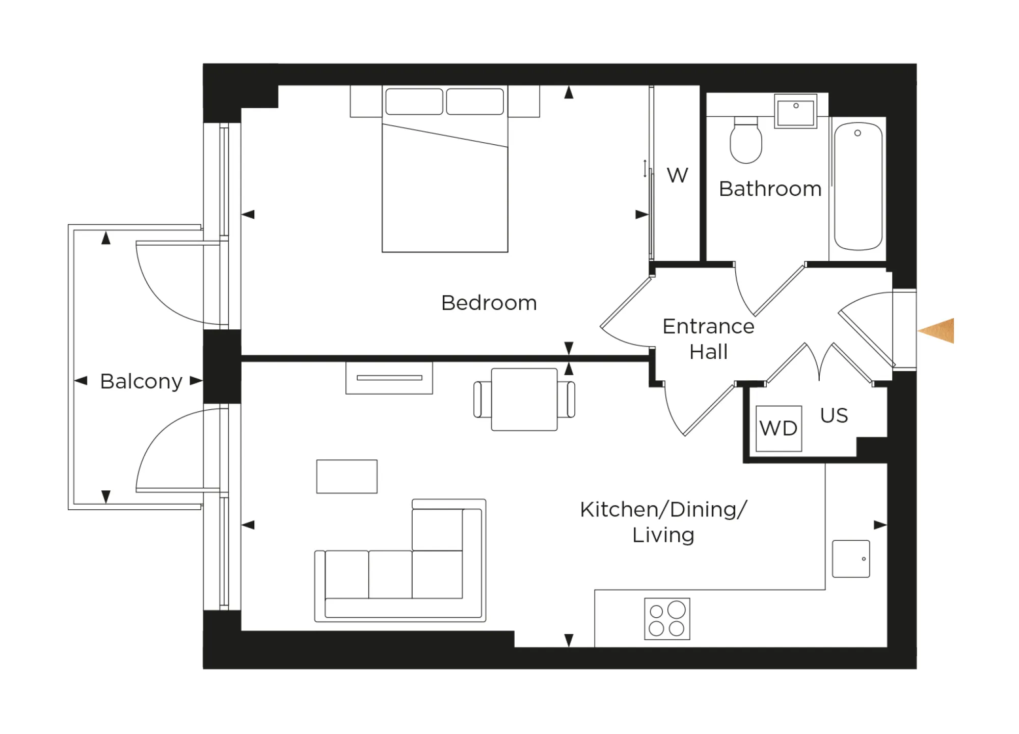
Apartment 74, Starling House floorplan
Kitchen / Dining / Living
7.75m
 x 
3.20m
25'5" x 10'6"
Bedroom
4.90m
 x 
3.25m
16'1" x 10'8"
Balcony
1.55m
 x 
3.30m
5'1" x 10'10"
Image
Apartment 74, Starling House
Site Plan
Specification

KITCHEN

• Matt finish handleless units with soft close to doors and drawers
• Caesarstone worktop with matching upstand and splashback behind hob
• Induction hob
• Integrated single oven
• Integrated microwave
• Integrated dishwasher
• Integrated fridge/freezer
• Integrated cooker hood
• Stainless steel undermounted sink with contemporary matt black mixer tap
• LED feature lighting to wall units
• Washer/dryer (freestanding in hallway cupboard)

Image
KBR Kitchen (2).jpg
Image
KBR KitchenDining (4).jpg
Image
kew bridge kitchen
Image
kew bridge kitchen

EN-SUITE

• White sanitaryware with contemporary matt black brassware
• Low profile shower tray with glass shower door
• Feature mirror cabinet and shelf with LED lighting
• Large format wall tiles
• Heated black towel rail

Image
Kew Bridge bathroom
Image
KBR Detail 2 (1).jpg
Image
KBR Detail 3.jpg
Image
KBR Ensuite (2).jpg

BATHROOM

• White sanitaryware with contemporary matt black brassware
• Bath with shower over and glass screen
• Feature mirror cabinet and shelf with LED lighting
• Bath panel to match vanity tops
• Large format wall tiles
• Heated black towel rail

Image
KBR Bathroom (2).jpg
Image
KBR Detail 2 (1).jpg
Image
Kew Bridge bathroom
Image
KBR Detail 3.jpg
Buying Calculators
Mortgage calculator

By putting in a few simple details we'll work out how much your monthly mortgage repayments could be.*

  • £

Your mortgage calculation

Deposit
Mortgage Required
Monthly Payments

*Hill do not provide mortgage advice, but our sales consultants will happily point you in the direction of an independent mortgage advisor who can help find the best deal for you.

Get in Touch

One and two bedroom show apartments available to view -  book an appointment! 

Kew Bridge Rise Sales Suite

Capital Interchange Way
Brentford
London
TW8 0EX
Get directions
Get in touch
02039061952
Opening hours
Sunday: 10:00-16:00
Monday: 10:00-17:30
Tuesday: 10:00-17:30
Wednesday: 10:00-19:00
Thursday: 10:00-17:30
Friday: 10:00-17:30
Saturday: 10:00-17:30

Kew Bridge Rise

Kew Bridge Rise

Developments

    Locations

      A unique collaboration between